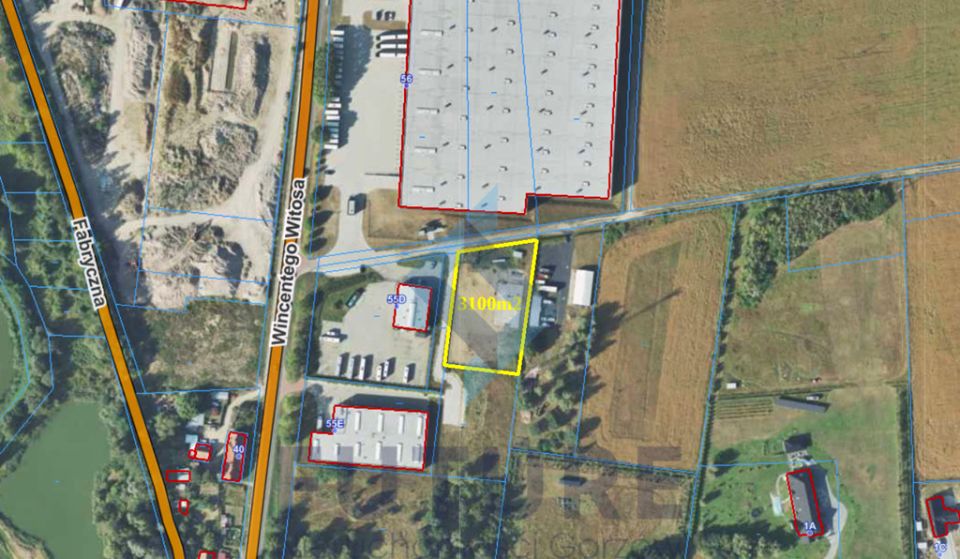
Działka inwestycyjna, ul. Witosa
Witosa, Sulęcin, lubuskie
- 700 000 zł
- 3 100 m²
- 225,81 zł/m²
Sławomir Reus
Skontaktuj się
Działka inwestycyjna, ul. Witosa
Witosa, Sulęcin, lubuskie
zaktualizowane:
4 maja 2026
Działka inwestycyjna, ul. Witosa
Zaktualizowane: 4 maja 2026
700 000 zł 3 100 m² 225,81 zł/m²
inwestycyjna
droga asfaltowa
prostokąt
prąd, kanalizacja
Zobacz na mapie
Rodzaj działki:
inwestycyjnaDojazd:
droga asfaltowaKształt:
prostokątMedia:
prąd, kanalizacjaSzczegóły ogłoszenia
- Typ oferty: działka na sprzedaż
- Cena: 700 000 zł (225,81 zł/m²)
- Forma własności: własność
- Działka: inwestycyjna, 3 100 m²
- kształt: prostokąt; teren płaski
- dojazd drogą asfaltową, ogrodzenie całkowite
- Media: prąd, kanalizacja
- Źródło: biuro nieruchomości: Future Nieruchomości Gorzów, zaktualizowane: 04.05.2026
- numer ogłoszenia: 23/17773/OGS
Lokalizacja
- Adres: Witosa, Sulęcin, sulęciński, lubuskie
Opis nieruchomości
FUTURE Nieruchomości Gorzów prezentuje:
Działka inwestycyjna na sprzedaż Sulęcin, ul. Witosa
#twojaprzyszloscmaswojadres
Na sprzedaż atrakcyjna działka inwestycyjna o powierzchni 3100 m², położona w dogodnej lokalizacji w Sulęcinie, przy ul. Witosa. (...)

